REQUEST A TOUR If you would like to see this home without being there in person, select the "Virtual Tour" option and your agent will contact you to discuss available opportunities.
In-PersonVirtual Tour

$ 405,900
Est. payment /mo
Active
13343 Fifth Street #Lot3 Parlier, CA 93648
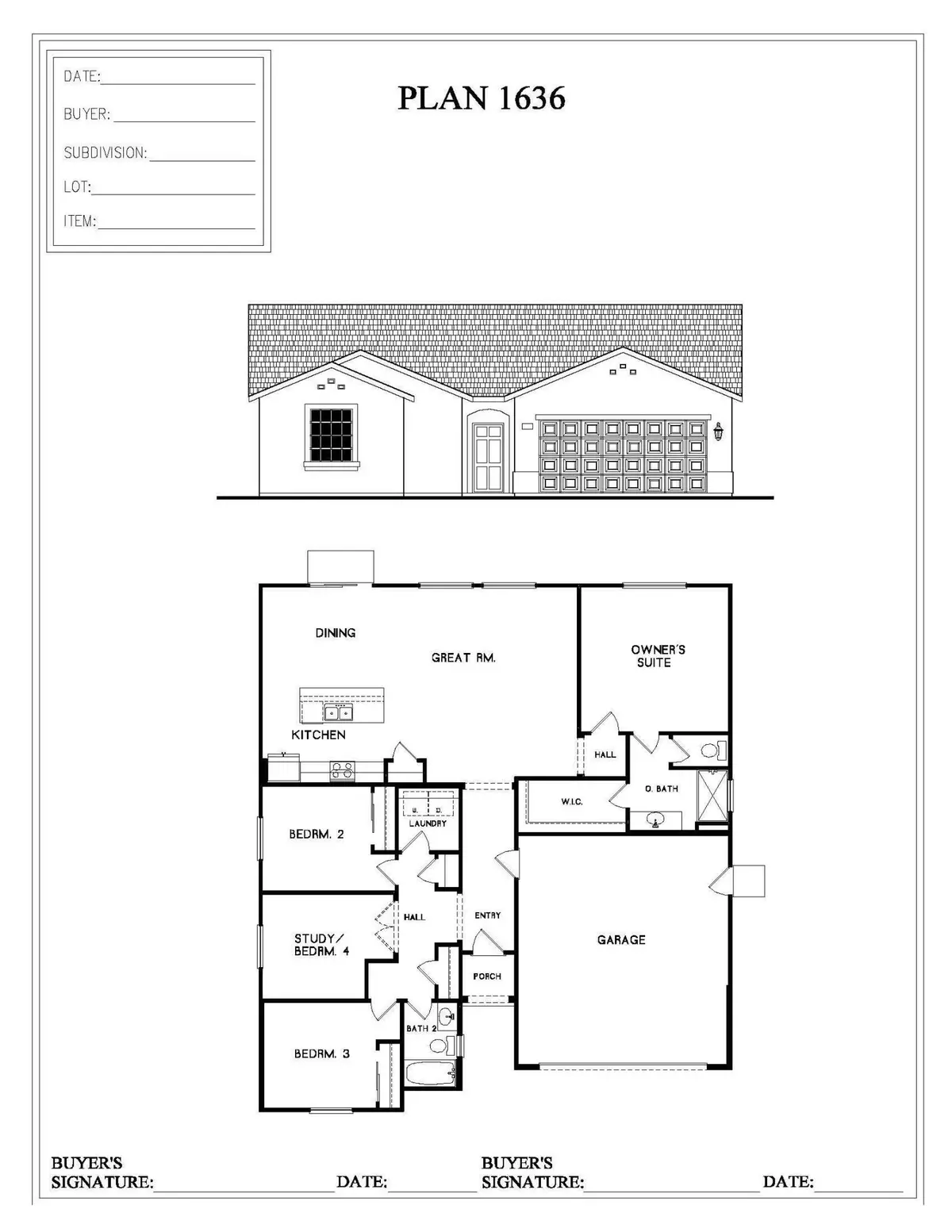
4 Beds
2 Baths
1,636 SqFt
UPDATED:
Key Details
Property Type Single Family Home
Sub Type Single Family Residence
Listing Status Active
Purchase Type For Sale
Square Footage 1,636 sqft
Price per Sqft $248
MLS Listing ID 237393
Bedrooms 4
Full Baths 2
Year Built 2025
Lot Size 5,170 Sqft
Property Sub-Type Single Family Residence
Property Description
Introducing our beauitful 4 bedrrom,2 bath floor plan that we believe you will love. This open floor plan is designed for entertaining guests, featuring a spacious kitchen equipped with an island and elegant granite countertops. The kitchen offers ample room for cooking and comes with plenty of cabinets for storage, making it both functional and stylish. Additionally, the master suite is designed to be roomy and inviting, providing a perfect retreat at the end of the day. We invite you to explore this new floor plan and look forward to your feedback.
Location
State CA
County Fresno
Interior
Heating Central
Cooling Central Air
Exterior
Garage Spaces 2.0
Utilities Available Electricity Connected, Natural Gas Connected, Sewer Connected, Water Connected
View Y/N N
Roof Type Composition
Building
Story 1
Sewer Public Sewer

Listed by Elizabeth C Madrid • Bloom Group, Inc.



